ZH1-C40/3-420/4P避雷器(SPD)
閱讀次數:148 發布時間:2026-03-31
ZH1-C40/3-420/4P避雷器(SPD)——以嚴苛品質降低采購風險
一、ZH1-C40/3-420/4P避雷器產品概述:
你在采購避雷器時,最關注適配性、可靠性和性價比——ZH1-C40/3-420/4P避雷器(SPD),是邦華電氣針對低壓配電系統防雷防護核心需求研發的優選產品,聚焦380V三相四線供電場景,可廣泛應用于各類工業廠房、商業樓宇、民用建筑等,有效抑制瞬時過電壓沖擊,攔截浪涌電流,避免因浪涌導致的設備故障、停產損失、財產損壞,為你的電氣系統筑牢防雷防護第一道屏障。

作為采購優選,該型號避雷器嚴格遵循國家推薦性標準GB/T 18802.1-2011,由邦華電氣自有生產基地匠心制造,每一臺產品都經過嚴格的出廠質量檢測,穩定性強、使用壽命長,無需復雜維護,既能滿足你的采購合規要求,也能降低后續使用成本;同時適配交流50/60Hz工頻系統,最大持續工作電壓420V,適配國內電網電壓波動特性,無需額外改造即可直接安裝,大幅提升你的采購及施工效率,搭配邦華電氣2年質保服務,采購更無后顧之憂。
二、ZH1-C40/3-420/4P避雷器核心參數表:

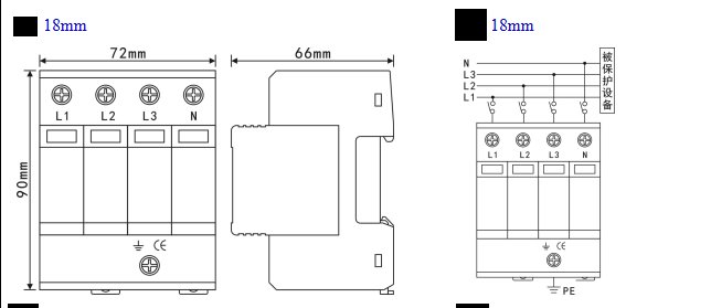
三、ZH1-C40/3-420/4P避雷器尺寸圖及接線圖:

四、系統接線圖:

五、ZH1-C40/3-420/4P避雷器核心優勢:
- 高適配性:專為380V三相四線系統設計,最大持續工作電壓420V,適配國內電網波動場景,可廣泛應用于工業、商業、民用等多領域,兼容各類低壓配電設備,采購后可直接對接施工,無需額外適配調整,節省你的采購溝通成本。
- 高可靠性:采用優質氧化鋅壓敏電阻核心元器件,響應速度≤25ns,保護通流量達40kA,能快速攔截各類浪涌沖擊,有效保護配電設備免受損壞;邦華電氣嚴苛品控,產品穩定性強、抗老化,使用壽命長,降低你的后期維護成本。
- 高性價比:邦華電氣源頭廠家直供,無中間環節,在保證品質達標的前提下,給出更具競爭力的采購價格;同時支持批量采購,搭配2年官方質保,完善的售后體系,讓你采購更省心、使用更放心。
- 易選型:參數清晰、規格明確,標注詳細的適配場景及核心參數,適配采購人員快速核對需求,無需具備專業防雷知識,即可快速鎖定適配型號,避免選型失誤,提升采購效率。
- 強合規性:嚴格遵循GB/T 18802.1-2011標準生產,邦華電氣可提供完整的檢測報告、合格證書,滿足各類項目采購合規及驗收需求,讓你采購無顧慮。
六、ZH1-C40/3-420/4P避雷器適配場景:
- 工業領域:各類工廠廠房配電箱、車間配電終端、小型光伏電站匯流箱、礦山企業低壓配電系統、石油石化小型站點配電設備;
- 商業領域:寫字樓配電間、商場超市配電系統、酒店客房配電終端、寫字樓樓層分配電柜;
- 民用領域:住宅小區單元分配電柜、別墅配電盒、居民樓樓道配電終端;
- 特殊領域:小型數據中心配電前端、安防監控機房配電設備、醫院門診樓配電系統、學校教學樓配電終端。

七、常見疑問解答:
- 問:ZH1-C40/3-420/4P避雷器,批量采購有優惠嗎?
答:有,邦華電氣支持批量采購,采購量越大優惠力度越高,同時提供批量送貨上門、專屬售后對接服務,最大程度降低你的采購成本。
- 問:該型號SPD的安裝難度大嗎?是否需要專業人員?
答:安裝簡單,采用35mm導軌安裝,配套完整安裝說明,無需復雜工具,普通電工即可操作;邦華電氣可提供專業安裝指導,確保安裝規范、防護有效。
- 問:采購后,產品出現質量問題如何處理?
答:邦華電氣提供2年官方質保,非人為故障可免費維修、更換,售后2小時響應、24小時內解決,快速處理質量疑問,避免影響你的施工進度。
- 問:該型號SPD是否符合采購合規要求?
答:完全符合GB/T 18802.1-2011標準,邦華電氣可提供完整檢測報告、合格證書,滿足各類項目采購合規及驗收需求,讓你采購無顧慮。
- 問:如何確認該型號是否適配我的使用場景?
答:可提供你的場景供電規格、防護需求,邦華電氣專業人員快速核對適配性,給出明確答復及選型建議,避免選型失誤。
- 問:邦華電氣的2年質保,具體包含哪些服務?
答:質保期內,非人為故障免費維修、更換,提供免費技術咨詢、安裝指導,售后全程對接,無需你承擔額外費用,全方位保障你的使用權益。
選擇邦華電氣ZH1-C40/3-420/4P避雷器(SPD),無需糾結選型、無需擔心品質、無需顧慮售后,精準匹配你的380V三相四線配電場景采購需求,以高適配性、高可靠性、高性價比,為你的電氣系統提供全方位防雷防護;邦華電氣源頭直供、2年質保護航、合規達標,讓你省心采購、安心使用,期待與你達成合作,共筑電氣安全防線。
相關
相關產品:
| ZH1-A15/2-275 | ZH1-A15/1+NPE-275 | ZH1-A15/3-275 | ZH1-A15/4-275 | ZH1-A15/3+NPE-275 | ZH1-A25/2-275 |
| ZH1-A25/1+NPE-275 | ZH1-A25/3-275 | ZH1-A25/4-275 | ZH1-A25/3+NPE-275 | ZH1-A35/2-275 | ZH1-A35/1+NPE-275 |
| ZH1-A35/3-275 | ZH1-A35/4-275 | ZH1-A35/3+NPE-275 | ZH1-A50/2-275 | ZH1-A50/1+NPE-275 | ZH1-A50/3-275 |
| ZH1-A50/4-275 | ZH1-A50/3+NPE-275 | ZH1-B150/2-420 | ZH1-B150/3-420 | ZH1-B150/4-420 | ZH1-B120/2-420 |
| ZH1-B120/3-420 | ZH1-B120/4-420 | ZH1-B100/2-420 | ZH1-B100/1+NPE-420 | ZH1-B100/3-420 | ZH1-B100/3+NPE-420 |
| ZH1-B100/4-420 | ZH1-B80/2-420 | ZH1-B80/1+NPE-420 | ZH1-B80/3-420 | ZH1-B80/3+NPE-420 | ZH1-B80/4-420 |
| ZH1-B60/2-420 | ZH1-B60/1+NPE-420 | ZH1-B60/3-420 | ZH1-B60/3+NPE-420 | ZH1-B60/4-420 | ZH1-C40/2-420 |
| ZH1-C40/1+NPE-420 | ZH1-C40/3-420 | ZH1-C40/3+NPE-420 | ZH1-C40/4-420 | ZH1-D25/2-385 | ZH1-D25/1+NPE-385 |
| ZH1-D25/3-385 | ZH1-D25/3+NPE-385 | ZH1-D25/4-385 | ZH2-DC24 | ZH2-DC48 | ZH2-DC110 |
| ZH2-DC220 | ZH6-C40/2-500DC | ZH6-C40/2-650DC | ZH6-C40/2-800DC | ZH6-C40/2-1000DC | ZH6-C40/2-1300DC |
| ZH6-B60/2-1300DC | ZH6-B80/2-1300DC | ZH6-B100/2-1300DC | ZH6-C40/3-500DC | ZH6-C40/3-650DC | ZH6-C40/3-800DC |
| ZH6-C40/3-1000DC | ZH6-C40/3-1300DC | ZH6-B60/3-1300DC | ZH6-B80/3-1300DC | ZH6-B100/3-1300DC | ZH6-C40/3-690 |
| ZH6-C40/4-690 | ZH6-B80/3-690 | ZH6-B80/4-690 | ZH6-B100/3-690 | ZH6-B100/4-690 | ZH6-B160/3-690 |
| ZH6-B160/4-690 | ZH8-4XB40 | ZH8-4XB60 | ZHS-DV3/24 | ZHS-DV3/220 | ZHS-DV2/24 |
| ZHS-DV2/220 | ZHS-DV2/S | ZHV-BNC | ZHV-BNC/16 | ZHV-BNC-F | ZHN-RJ45 |
| ZHN-RJ11/24 | ZHN-RJ11/48 | ZHN-RJ11/110 |




